University Estates Gallery
Popular Floor Plans
NOW FEATURING
Dog Park on University Estates Grounds – Perfect for pet lovers!
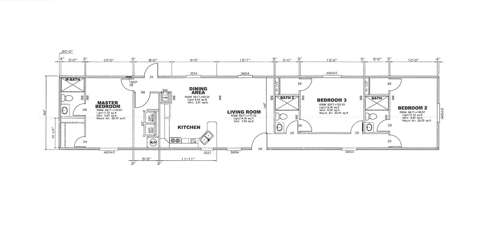
Hunter
Home Gallery
The Hunter is 3BR 3 full bath 16’x80' home that is perfect for college students. Why? well, it’s really easy to divide the rent up evenly when all 3 residents have the same size BR and exact same space; Each BR and bath and walk-in closet is the same size. So everyone gets along.
































